MODEL : HXF6DTKQ
Cửa sổ mở hất hệ nhôm Mitadoor DP với thiết kế thông minh, bền chắc, cách âm cách nhiệt tốt cùng màu sắc tinh tế. Đây là giải pháp tối ưu cho nhiều công trình với chi phí hợp lý, phù hợp nhu cầu sử dụng và thẩm mỹ của đa số gia đình Việt.
Cửa sổ giữ vai trò quan trọng, không chỉ giúp kết nối không gian bên trong với thiên nhiên, mà còn giúp bảo vệ tổ ấm khỏi những tác động của thời tiết. Với thiết kế thông minh, dòng cửa sổ mở hất hệ nhôm Mitadoor DP ra đời như một giải pháp bền vững, đảm bảo an toàn, phù hợp với chi phí của đa số người dùng.
Nếu bạn đang tìm kiếm một sản phẩm cửa sổ đảm bảo cả độ bền, đẹp với chi phí hợp lý, thì cửa sổ mở hất hệ nhôm Mitadoor DP chính là lựa chọn đáng cân nhắc. Mẫu cửa sổ này được xem là lựa chọn lý tưởng, đáp ứng cả nhu cầu thẩm mỹ lẫn công năng cho nhiều công trình. Cùng Mitadoor tìm hiểu những điểm nổi bật của mẫu cửa sổ mở hất hệ nhôm Mitadoor DP để hiểu rõ hơn về sản phẩm này.
Cửa sổ mở hất hệ nhôm Mitadoor DP thẩm mỹ với chi phí tối ưu
Những điểm nổi bật của mẫu cửa sổ mở hất hệ nhôm Mitadoor DP
1. Vật liệu cao cấp, kết cấu vững chắc
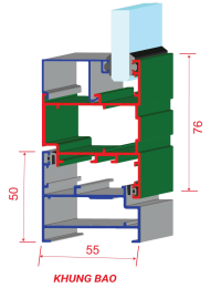
Khung bao cửa sổ mở hất Mitadoor DP
2. Phụ kiện đồng bộ chất lượng
Cửa sử dụng hệ phụ kiện đồng bộ cao cấp giúp vận hành êm ái, đồng thời kéo dài tuổi thọ sử dụng.
3. Thiết kế an toàn, vận hành êm ái
4. Khả năng cách âm, cách nhiệt tốt
Cửa sổ mở hất hệ nhôm Mitadoor DP đảm bảo an toàn, cách âm cách nhiệt tốt
5. Màu sắc tinh tế
6. Giá cả cạnh tranh
Dù sở hữu nhiều ưu điểm nổi bật, cửa sổ mở hất Mitadoor DP vẫn có mức giá hợp lý, phù hợp với phân khúc khách hàng bình dân. Mitadoor đã cân bằng giữa chất lượng sản phẩm và chi phí, mang lại giải pháp cửa nhôm cao cấp nhưng vẫn phù hợp với ngân sách của đa số gia đình.
Tại sao nên chọn cửa sổ mở hất hệ nhôm DP của Mitadoor?
Có thể nói, cửa sổ mở hất hệ nhôm Mitadoor DP chính là lựa chọn đáng tin cậy cho những khách hàng đang tìm kiếm một giải pháp cửa đẹp, bền chắc và an toàn với chi phí hợp lý.
Mitadoor là thương hiệu uy tín hàng đầu Việt Nam với nhiều năm kinh nghiệm trong lĩnh vực cửa với hệ thống phân phối rộng khắp. Sản phẩm cửa sổ mở hất hệ nhôm DP được sản xuất trên dây chuyền hiện đại, đảm bảo chất lượng. Cùng với đó, khách hàng có thể hoàn toàn yên tâm với chính sách bảo hành uy tín cùng dịch vụ hậu mãi tận tâm, chuyên nghiệp.
Không chỉ vậy, Mitadoor còn mang đến nhiều lựa chọn đa dạng về mẫu mã, màu sắc và các dòng sản phẩm cửa, phù hợp với mọi loại hình công trình từ nhà ở đến thương mại. Chúng tôi tự tin là đối tác đáng tin cậy, đồng hành cùng khách hàng trong việc kiến tạo những không gian sống tiện nghi và thẩm mỹ.
Cách liên hệ như thế nào?
Quý Khách hàng:
- Cần tư vấn, báo giá về cửa nhôm kính chính hãng, cửa nhôm kính giá rẻ, cửa nhôm kính cao cấp - Hãy đến Mitadoor.
- Cần mua cửa nhôm kính chính hãng, mua cửa nhôm kính giá rẻ, mua cửa nhôm kính cao cấp - Hãy gọi về Mitadoor số 0901.007.888 - 0909909888
- Cần lắp đặt cửa nhôm kính chính hãng, lắp đặt cửa nhôm kính giá rẻ, lắp đặt cửa nhôm kính cao cấp - Hãy gọi về Mitadoor số 0901.007.888 - 0909909888
- Cung cấp cửa nhôm kính cho dự án, Lắp đặt cửa nhôm kính cho dự án - Hãy gọi về Mitadoor số 0901.007.888
- Cần bảo trì, sửa chữa cửa nhôm kính, sửa chữa bản lề, sửa chữa tay nắm - Hãy gọi về Mitadoor số Hotline bảo hành: 0909.909.888 hoặc gửi thông tin bảo hành trên website www.mitadoor.com.vn
- Mua cửa nhôm kính, mua cửa nhôm kính cao cấp thì mua ở đâu? Chỉ cần khách hàng nhấc máy gọi về Mitadoor số 0901.007.888 - 0909909888 thì Mitadoor sẽ bố trí nhân viên đến tư vấn tận nơi, hoặc khách hàng có thể đến Showroom Mitadoor để đặt hàng (chi tiết bên dưới). Thông tin bố trí nhân sự đến ngày mới nhất 01/08/2025 như sau:
+ Mua cửa nhôm kính tại các Quận 1, Quận 3, Quận 5, Quận 10, Quận 11: Công ty Cửa Mitadoor bố trí NV Tấn Tình tư vấn, chăm sóc.
+ Mua cửa nhôm kính tại các Quận Tân Bình, Tân Phú, Bình Tân: Công ty Cửa Mitadoor bố trí NV Thành Ban tư vấn, chăm sóc.
+ Mua cửa nhôm kính tại các Quận 6, Bình Tân, Bình Chánh: Công ty Cửa Mitadoor bố trí NV An Khương tư vấn, chăm sóc.
+ Mua cửa nhôm kính tại các Quận 4, 7, 8, Nhà Bè, Cần Giờ: Công ty Cửa Mitadoor bố trí NV Thanh Toàn tư vấn, chăm sóc.
+ Mua cửa nhôm kính tại các Quận Bình Thạnh, Phú Nhuận: Công ty Cửa Mitadoor bố trí NV Mạnh Tiến tư vấn, chăm sóc.
+ Mua cửa nhôm kính tại các Quận Gò Vấp, 12: Công ty Cửa Mitadoor bố trí NV Đình Việt tư vấn, chăm sóc.
+ Mua cửa nhôm kính tại các Quận 2, Quận 9, Thủ Đức: Công ty Cửa Mitadoor bố trí NV Mạnh Lương tư vấn, chăm sóc.
+ Mua cửa nhôm kính tại các khu vực Dĩ An, Thuận An, Lái Thiêu, Thuận Giao: Công ty Cửa Mitadoor bố trí NV Văn Lâm tư vấn, chăm sóc.
+ Mua cửa nhôm kính tại các khu vực Bình Chuẩn, Thủ Dầu Một, Tân Uyên, Thành phố Mới Bình Dương: Công ty Cửa Mitadoor bố trí NV Quốc Bảo, Chí Tình tư vấn, chăm sóc.
+ Mua cửa nhôm kính tại các khu vực Biên Hòa, Trảng Bom, Hố Nai: Công ty Cửa Mitadoor bố trí NV Thu Trang tư vấn, chăm sóc.
+ Mua cửa nhôm kính tại các khu vực: Nhơn Trạch, Long Thành, Bà Rịa Vũng Tàu: Công ty Cửa Mitadoor bố trí NV Văn Trường tư vấn, chăm sóc.
Tùy theo nhu cầu khách hàng tại các thời điểm, Công ty có thể điều chuyển nhân sự tư vấn phù hợp để giúp khách hàng được cung cấp bộ cửa tốt nhất theo nhu cầu của mình.
Mua cửa nhôm kính giá rẻ, mua cửa nhôm kính cao cấp, mua cửa nhôm kính hiện đại, mua cửa nhôm kính đẹp, ... theo nhu cầu của Quý Khách hàng, Công ty Cửa Mitadoor vẫn đáp ứng các dòng sản phẩm này, tùy theo độ dày, kết cấu nhưng vẫn luôn đảm bảo chất lượng và được bảo hành chính hãng. Quý Khách có thể tham khảo thêm dòng sản phẩm khác của Mitadoor tại website www.mitadoor.com.vn
-------------------
Để được tư vấn, đặt hàng hoặc nhận báo giá, Quý Khách vui lòng liên hệ với Mitadoor qua các kênh sau:
VPGD: 298 - 300 Lý Thường Kiệt, P. Diên Hồng, TP.HCM
Nhà máy: Lô 56, Đường số 2, KCN Tân Tạo, TP.HCM
Nhà máy: Lô A, Đường 1B, KCN Đồng An, Phường Thuận An, TP.HCM
Hotline: 0909.909.888 - 0901.007.888
Fanpage: Mitadoor Group
Mitadoor với hơn 30 năm kinh nghiệm là nhà sản xuất & cung cấp các giải pháp toàn diện về cửa cuốn, cửa nhôm kính hàng đầu Việt Nam!
Chi tiết lắp đặt cửa sổ mở hất hệ nhôm Mitadoor DP
Kích thước thông dụng cửa sổ mở hất hệ nhôm Mitadoor DP
Quy chuẩn lắp đặt cửa sổ mở hất hệ nhôm Mitadoor DP
Chi tiết lắp đặt cửa sổ mở hất hệ nhôm Mitadoor DP
HỆ PROFILE NHÔM:
- Profile cao cấp Châu Âu, Hệ Đức, Hệ Úc và Hệ Mitadoor, có độ dày lên đến 2.5mm.
- Sử dụng hợp kim nhôm 6063 – độ cứng T5.
- Cấu tạo dạng hộp, bên trong có khoang rỗng nhỏ, có chức năng cách âm, cách nhiệt.
- Kết cấu khung nhôm có sóng gia cường, chịu được sự va đập khi đóng mở cửa.
- Bảo hành: 05 năm.
HỆ PHỤ KIỆN KIM KHÍ:
- Hãng phụ kiện: Roto, Hafele (Đức), Draho, LP, KinLong, GQ, Hopo, Hafele (Trung Quốc), VVP (Thái Lan), JY (Đài Loan), Candy (Việt Nam), khóa từ Widmann.
- Hệ phụ kiện chính hãng, đồng bộ, thẩm mỹ.
- Bảo hành: Roto, Hafele (05 năm). Các phụ kiện Draho, LP, KinLong, Hopo, GQ, Candy, Hafele TQ (02 năm). VVP, JY (01 năm), Khóa từ Widmann (02 năm).
HỆ KÍNH:
- Phôi Kính: Kính Việt - Nhật (VFG), kính Bình Dương (VIFG), Kính Trung Quốc (CFG) và kính nhập khẩu từ Pháp, Bỉ, Indonesia, Thái Lan... tùy yêu cầu của khách hàng.
- Màu Kính: Kính trắng, kính màu, kính phun cát mờ, kính phản quang.
- Các loại kính: kính đơn cường lực hoặc không cường lực, kính dán an toàn nhiều lớp, kính hút chân không (kính hộp).
- Bảo hành: 01 năm, không có ngoại lực tác động.
HỆ GIOĂNG CAO SU:
- Gioăng cao su EPDM có nguồn gốc từ cao su thiên nhiên.
- Bền với nhiệt, tránh oxy hóa, tốt trong môi trường nước và thời tiết.
- Bền với hóa chất, có độ mềm dẻo ở nhiệt độ thấp.
- Đảm bảo độ kín, khít, tránh lão hóa, chống thấm nước.
HỆ SƠN BỀ MẶT:
- Hãng sơn: Sơn tĩnh điện Akzo Nobel, PPG, Jotun, có tính năng chống oxi hóa, chống ăn mòn, chống phai màu dưới tác động của thời tiết.
- Màu cơ bản: Xám đậm, Xám ánh kim, Trắng, Cát cháy, Xám XF, Vân gỗ YH042 - Bảo hành 05 năm.
- Màu đặc biệt: Vân gỗ sồi, Champagne Gold, Champagne Brown, Brown Metallic, Brown Sandy.